KAROLINERGÅRDEN

 

250 kvadratmeter trä, linoljefärg, munblåst glas och lertegel väntar.

 
 

från 250kvm

9 rum, 2 badrum

2 våningsplan


 

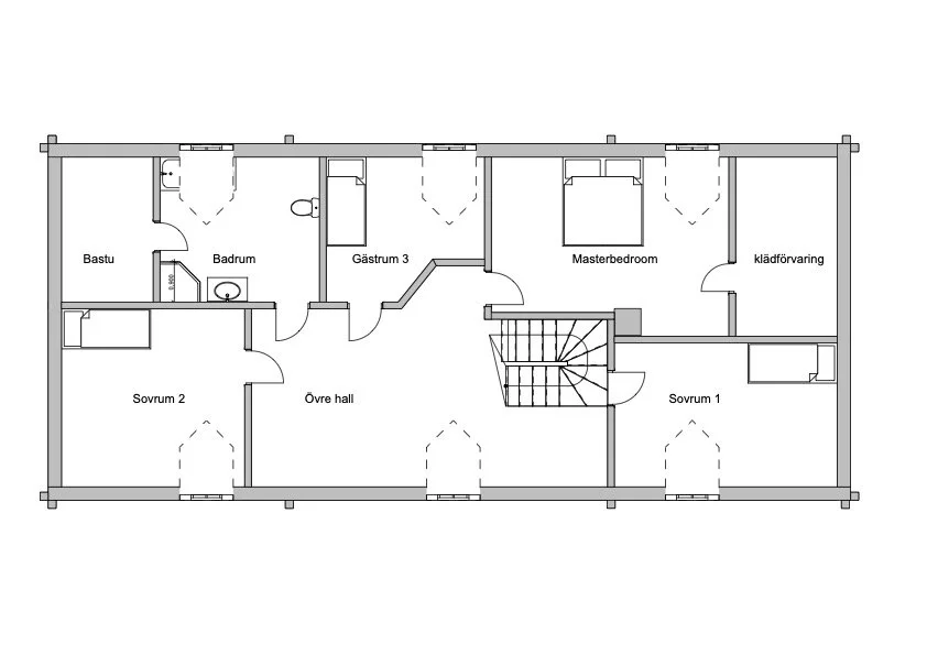
Planlösning

Den Karolinska stilen blev populär från 1600 talets mitt och fram. Fasaden är en kilsågad panel. Med profilerade locklister som som målades med den ljusa Falu rödfärgen.

Arkitekt: Tommy Jansson, Byggnadsverk
Inspirerad av köksflyglarna på Skogaholms Herrgård

 

Vill ni veta mer eller boka ett första möte?

 

Vänligen skriv in dina kontaktuppgifter så återkommer vi till dig. Varje husdröm är unik och våra hus kan modifieras efter era önskemål. Välkomna!